Collage tower

A Vertical Neighborhood of Bay Windows and Sky Gardens

Design Studio Project. All materials by the author

Location: Octavia Street, San Francisco

Material: Structural steel

Instructor: David Jaehning

UC Berkeley. 2020

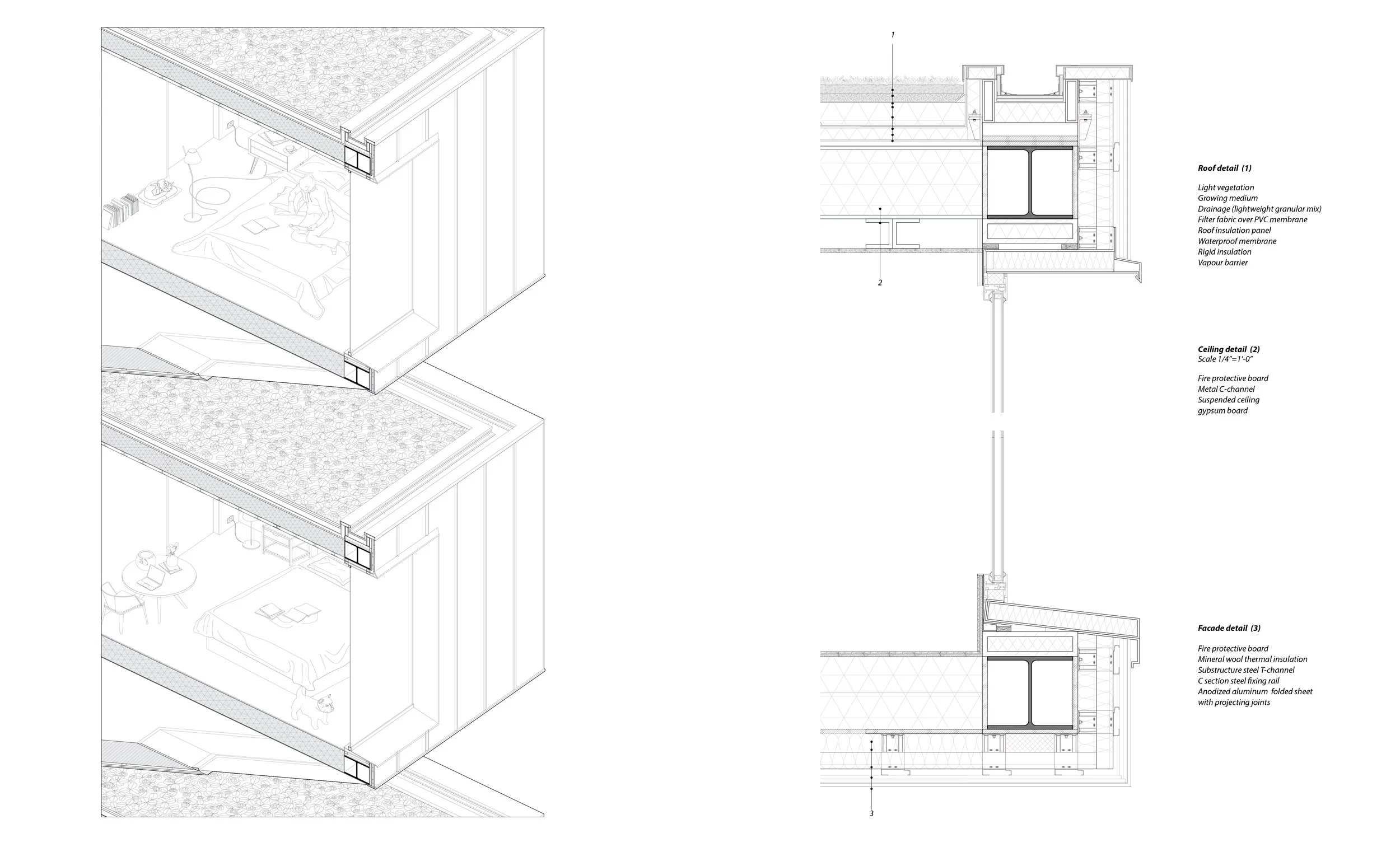
This high-rise reinterprets the traditional San Francisco house, drawing on the bay window as a defining architectural element. Multiplied, interlocked, and stacked, this familiar form becomes an inhabitable vertical collage, where angled surfaces reinterpret the bay window at the scale of the tower.

Outdoor space is introduced through a system of voids, forming a second key component of the design. Each apartment is extended with a private terrace, embedding domestic outdoor space within the vertical structure.

In response to the neighborhood’s network of public gardens, the project incorporates a series of communal gardens within these voids. Distributed throughout the building, they provide shared spaces with expansive views of San Francisco, fostering social interaction and a connection to the landscape. The project explores how high-rise residential design can reinterpret local housing typologies to support healthier, more community-oriented urban living.

Unit assembly & facade massing
Unit assembly (south side)
M1- lower unit
M2- upper unit
Previous
Previous

Carving Light

Next
Next

A Field of Rooms